Boğazlıyan ilçesi Mevlana mahallesinde yeni bir konut projesi daha hayata geçiriliyor. Müteahhit Ersin Abaylı’nın Abaylı İnşaat garantisiyle hayata geçireceği Erdinç Sitesi projesi, modern yaşam alanları ve sosyal imkanlarıyla dikkat çekiyor.
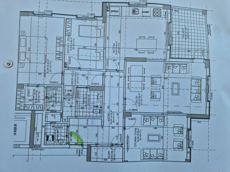
Toplam 5 bin 90 metrekarelik arsa üzerine inşa edilecek olan proje, A, B ve C blok olmak üzere üç bloktan oluşacak. Projede toplam 72 daire yer alırken, bunların 48’i 3+1, 24’ü ise 2+1 olarak planlandı. Geniş ve kullanışlı yaşam alanlarıyla tasarlanan dairelerin 2+1 olanları 107 metrekare, 3+1 olanları ise 150 metrekare büyüklüğünde olacak.
Projede modern konut anlayışına uygun olarak giyinme odası, çift banyo ve WC gibi özellikler yer alacak. Ayrıca site içerisinde otopark alanı ve çocuklar için oyun bahçesi de bulunacak. Bu yönüyle Erdinç Sitesi’nin ailelerin konforlu ve güvenli bir yaşam sürebileceği yeni bir yaşam alanı olması hedefleniyor.
Abaylı İnşaat tarafından yürütülecek olan projenin teslim süresinin 3 yıl içerisinde tamamlanması planlanırken, proje için lansmana özel ve sınırlı sayıda avantajlı fiyatlar sunulacağı belirtildi.
Boğazlıyan’da konut ihtiyacına modern bir alternatif sunması beklenen Erdinç Sitesi’nin, hem yatırım yapmak isteyenler hem de yeni bir yaşam alanı arayan vatandaşlar için önemli bir fırsat oluşturacağı ifade ediliyor.


